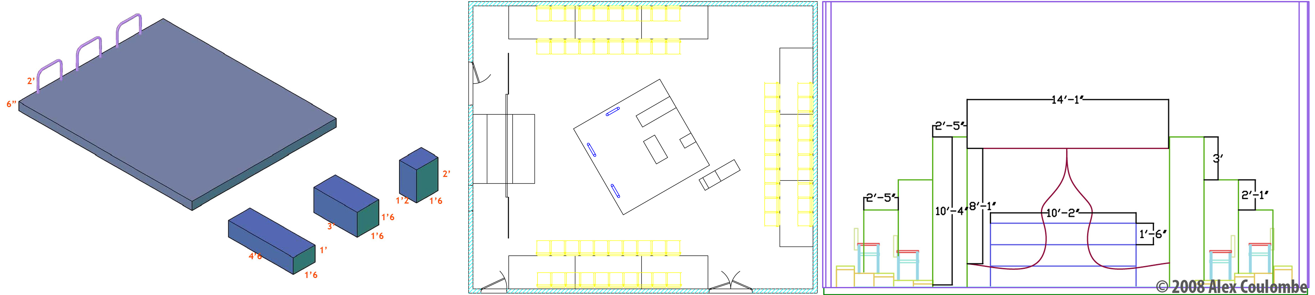
Sketchbook Design
Plan
Component Sketch
Altar
Movie
End
Render
Traffic SlightSaucer DinerVilla BritaNot-A-Gas StationGreenboxCharette CompetitioninfoBoxShipley SchoolBreadloaf CorporationVIP StructuresZGF

Equus

Set Design for the Blackbox Players, Syracuse, NY | High energy,
minimalist drama on worship, featuring 14 settings and 46 set changes.